Clichy-sous-Bois — Ce programme immobilier neuf propose une sélection d’appartements conçus pour répondre aux attentes ...

Estimations basees sur TMI 30%, credit 20 ans, taux 3.4%
Donnees insuffisantes pour calculer les KPIs.
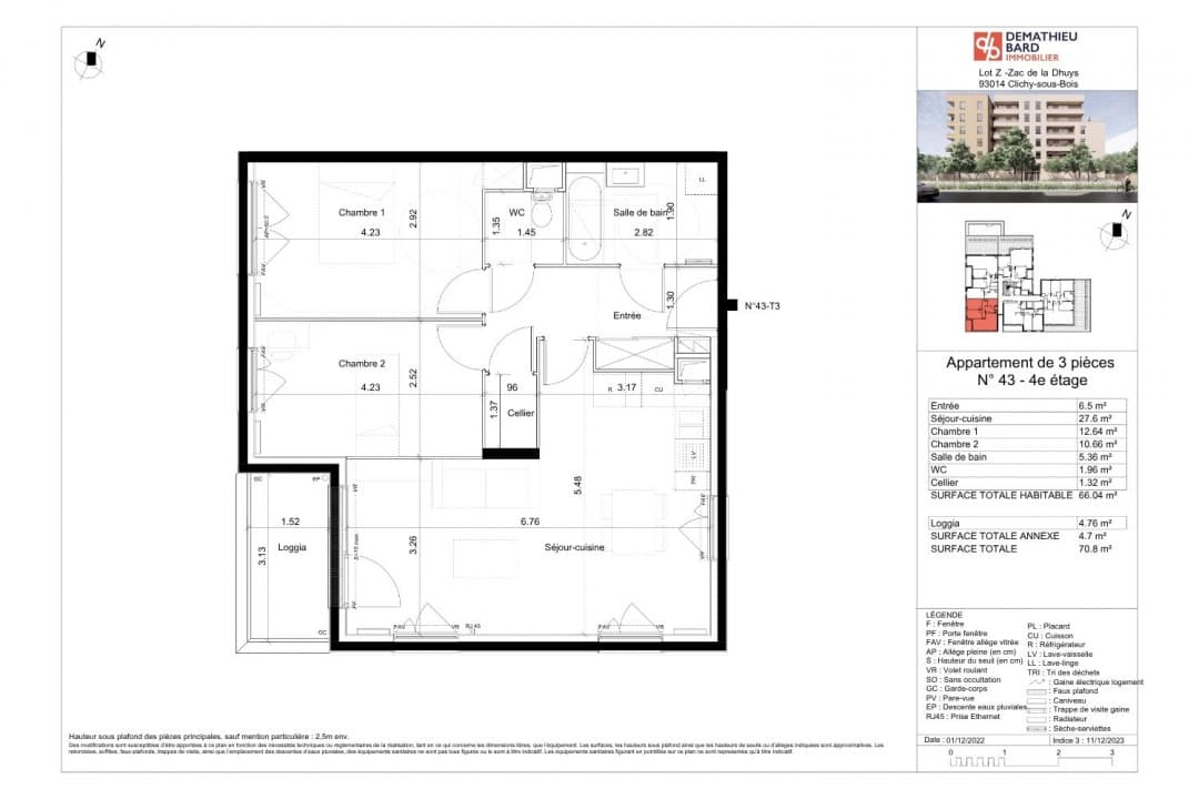
Caractéristiques
Ce programme immobilier neuf propose une sélection d’appartements conçus pour répondre aux attentes des résidents recherchant confort et qualité de vie. Les logements bénéficient de prestations soignées, garantissant un cadre de vie agréable et sécurisé. L’architecture moderne s’intègre harmonieusement dans l’environnement urbain, offrant ainsi un équilibre parfait entre fonctionnalité et esthétique. La livraison du projet est prévue pour le premier trimestre 2025, permettant aux futurs occupants de s’installer rapidement dans un quartier dynamique et attractif. Le régime fiscal applicable permet d’envisager une acquisition en résidence principale, avec la possibilité de profiter d’un cadre de vie pratique, proche des commodités, des transports et des espaces verts. Ce programme s’adresse à une clientèle attentive à la qualité des finitions, à la pérennité de l’investissement immobilier et au bien-être quotidien.
Zone fiscale
Zone A
Livraison
mars 2025
Lots disponibles
0 / 0 lots
Lots disponibles
Les détails des lots ne sont pas encore disponibles pour ce programme.
Financement
Informations de prix non disponibles pour ce programme.
Fiscalité - Loi Jeanbrun
La Loi Jeanbrun (PLF 2026) est un dispositif de défiscalisation immobilière qui permet aux investisseurs de déduire une partie du prix d'acquisition de leurs impôts en échange d'un engagement de location à loyer plafonné pendant 9 ans.
Pour un logement neuf, la base d'amortissement est de 80% du prix d'acquisition. Le taux d'amortissement varie de 3.5000000000000004% à 5.5% selon le niveau de loyer pratiqué.
Conditions d'éligibilité
Logement neuf
Logement neuf ou en VEFA (vente en l'état futur d'achèvement)
Zone éligible
Ce programme est en Zone A
Engagement de location
Location pendant 9 ans minimum à loyer plafonné
Plafonds de loyers
Loyers plafonnés selon la zone fiscale et le niveau de loyer choisi
Avantages du neuf
Frais de notaire réduits
~3% dans le neuf vs ~8% dans l'ancien
0 travaux
Logement neuf = pas de rénovation, pas de mauvaise surprise
Charges divisées par 3
RE2020, isolation performante, équipements basse consommation
Économie d'impôt
Utilisez le simulateur pour calculer votre économie
DPE vise : A - Performance energetique maximale
Tous les logements neufs visent un DPE A ou B (RE2020).
Calculez votre économie d'impôt exacte
Notre simulateur avancé prend en compte votre revenu, votre situation familiale et le lot choisi pour un calcul personnalisé.
Simuler mon économie d'impôtVos avantages
En direct avec le promoteur, sans intermédiaire
Bénéficiez des tarifs promoteurs directs, sans aucune marge d'intermédiation. Aucune commission ne s'ajoute à votre prix d'achat.
Investir à Clichy-sous-Bois
Découvrez pourquoi Clichy-sous-Bois est une ville attractive pour l'investissement locatif avec la loi Jeanbrun.
Voir la page Clichy-sous-Bois